Vestbytorget – Rammesøknad sendt!
Publisert: 15.10.2025
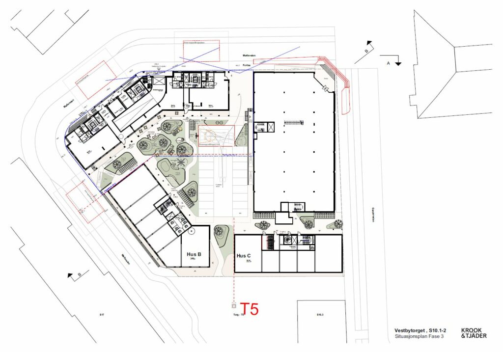
I 2022 kjøpte vi Vestbytorget – et næringsbygg fra 1987 som mange så på som et åpenbart riveobjekt. Vi så derimot et potensial: å bevare, transformere og bygge videre – heller enn å starte på nytt!
Gjennom en arkitektkonkurranse gikk vi videre med Arkitektene Krook & Tjäder høsten 2024. Eksisterende næringsbygg skal kombineres med nye boliger, næringsarealer og aktive møteplasser – midt i sentrum, bare to minutter fra Vestby togstasjon.
I februar 2025 ble prosjektet utvidet med nabotomten, og Vestbytorget utvikles nå til et moderne kvartal med:
-125 leiligheter fordelt på tre byggetrinn med fellesarealer
– Ca. 5.200 m2 næringsareal med varierte tjenester som man trenger i hverdagen, blant annet kafe, frisør, treningssenter, helsetjenester og bank
– Bymessig kvartalsstruktur med spennende møteplasser og torg
Vestbytorget skal bli et levende byrom hvor næring, bolig og møteplasser går hånd i hånd – et løft for hele Vestby sentrum.
Vi gleder oss til å sette i gang med dette flotte prosjektet. Det kommer flere spennende nyheter fremover i dette prosjektet, følg godt med! Interessert? Ta kontakt med oss!


